Používame cookies

Súbory cookie a ďalšie technológie sledovania používame na zlepšenie vášho zážitku z prehliadania našich webových stránok, na to, aby sme vám zobrazovali prispôsobený obsah a cielené reklamy, na analýzu návštevnosti našich webových stránok a na pochopenie toho, odkiaľ naši návštevníci prichádzajú. Viac info

Popis nehnuteľnosti

🌿 ŽIVOT V PRÍRODE, DO PRÁCE VLAKOM! Moderné 2-izbové byty (54,9 m²) s predzáhradkou a terasou od 158 999 € – Báhoň (23 min do BA).

Hľadáte pokoj vidieka, no nechcete strácať čas v zápchach?

Predstavujeme projekt Rezidencia Potôčik – novostavbu v pokojnej a zelenej časti obce Báhoň. Ideálne bývanie pre tých, ktorí chcú ráno relaxovať v prírode a do Bratislavy sa dostať za 23 minút Vlakom bez stresu!

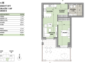
PONUKA: 2-izbový byt (54,9 m²) od 158 999 €

Kľúčové benefity bytu:
1. NP (Prízemie): Ideálne pre tých, ktorí preferujú pohodlný prístup.
Vlastná predzáhradka (19,1 m²): Váš súkromný zelený raj na relax.
Terasa (3,7 m²): Na rannú kávu alebo večerné posedenie.
Štádium: Možnosť výberu medzi HOLOBYTom alebo dokončením do ŠTANDARDU (vyberte si vlastné materiály).

Len 48 bytov: Malý, komunitný projekt.

Parkovacie miesto v hodnote 7500 EUR ZDARMA

NADŠTANDARDNÉ VYBAVENIE:

✅ Podlahové kúrenie (pre tepelnú pohodu). ✅ Veľkoformátové okná s trojsklom (pre nízke náklady). ✅ Predpríprava na klimatizáciu a elektrické žalúzie. ✅ Možnosť krbu/kachlí vo vybraných bytoch. ✅ Dva moderné výťahy v budove.

LOKALITA: RÝCHLO A POHODLNE

Lokalita Báhoň ponúka kompletnú občiansku vybavenosť (škola, škôlka, potraviny, lekár) a bezkonkurenčnú dopravnú dostupnosť:
Vlaková stanica: Len 5 minút chôdzou!
Bratislava (Hlavná stanica): 23 minút vlakom.
Trnava: 11 minút vlakom.
Pezinok: 12 minút autom.
Diaľnica D1: 7 minút autom.

FINANCOVANIE BEZ STRESU (Model 15/85)

Cena: od 158 999 €

Zaplatíte iba 15 % z ceny bytu pri podpise zmluvy. Zvyšných 85 % hradíte až po úspešnej kolaudácii.

Výstavba začína: September 2025.
Nenechajte si ujsť tieto obľúbené byty s predzáhradkou!

Zaujala vás táto ponuka? Kontaktujte nás pre kompletné pôdorysy a cenník:

KONTAKT: 
Mgr. Michal Marták
0903 056 993
martak@promreal.sk
https://potocik.sk/

Vlastnosti

Status:
aktívne
Vlastníctvo:
korporácia
Predzáhradka:
áno
Plocha predzáhradky:
19,1
Úžitková plocha:
54.9 m2
Zastavaná plocha:
54.9 m2
Podlahová plocha:
54.9 m2
Stav:
Vo výstavbe
Počet izieb:
2
Energetická náročnosť budovy:
Nízkoenergetický
Typ budovy:
zmiešané
Typ výbavy:
holopriestor
Terasa:
áno
Výťah:
áno
Rok výstavby:
2025
Rok kolaudácie:
2027
Pozícia:
Prízemie
Celková plocha:
77.7 m2
Terasa plocha:
3.7 m2
Počet terás:
1
Inžinierske siete:
áno
Voda:
áno
Elektrika:
áno
Plyn:
áno
Kanalizácia:
áno

Informatívna úverová kalkulačka

Pozrieť na mape

Maklér

Mgr. Michal Marták

Mgr. Michal Marták

Realitný špecialista

  • Slovensky

Volám sa Mgr. Michal Marták a už niekoľko rokov sa venujem svetu nehnuteľností.

Vyštudoval som Právnickú fakultu Univerzity Komenského v Bratislave, kde som získal pevné základy v oblasti práva. Počas kariéry som pôsobil v advokátskych kanceláriách ako koncipient a neskôr v investičnej spoločnosti Across Private Investments ako investičný konzultant, kde som mal možnosť spoznať fungovanie investícií, financií a obchodných vzťahov z prvej ruky.

Tieto skúsenosti ma priviedli k realitám, ktorým sa naplno venujem od roku 2022. Pri práci s klientmi sa snažím spájať odborné znalosti s ľudským prístupom – pretože verím, že kúpa či predaj nehnuteľnosti nie je len o číslach a zmluvách, ale najmä o dôvere, komunikácii a pochopení potrieb každého klienta. Mojím cieľom je, aby celý proces prebehol transparentne, bezpečne a s výsledkom, s ktorým budete spokojní.

Primárna oblasť pôsobenia je Bratislavský a Trnavský kraj.

Ak hľadáte spoľahlivého partnera pre predaj či kúpu nehnuteľnosti, rád vám pomôžem nájsť riešenie, ktoré vám bude dávať zmysel.

Radi Vám poradíme

Podobné nehnuteľnosti