 
																							
										- 169 900 €
PREDAJ 2 izbového bytu so záhradou v Prémiovej novostavbe Pezinok A0+
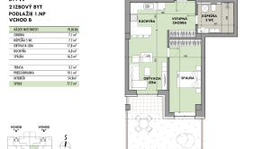
- 2-izbový byt
- 48.28 m2
- Limbašská cesta, Pezinok
| Interné ID: | H1 | 
|---|---|
| Obec: | Báhoň | 
| Okres: | Pezinok | 
| Kraj: | Bratislavský kraj | 
| Druh: | Byty | 
| Typ: | Predaj | 
| Typ bytu: | 2-izbový byt | 
Na predaj 2-izbový byt od 158 999 € v projekte Rezidencia Potôčik – moderné bývanie v prírode, len 23 min od Bratislavy
Ponúkame na predaj 2-izbový byt s rozlohou 54,9 m², v cene od 158 999 €, v novom projekte Rezidencia Potôčik. Výstavba sa začína v septembri 2025. Tento výnimočný projekt sa nachádza v pokojnej a zelenej časti obce Báhoň a je ideálnym miestom pre tých, ktorí hľadajú pokoj vidieka s dostupnosťou mesta.
O projekte:
Novostavba s 48 bytmi
Byt sa nachádza na 1. NP
Priestranná predzáhradka 19,1 m²
Terasa 3,7 m2
Možnosť výberu: HOLOBYT alebo ŠTANDARD s výberom materiálov
Moderný dizajn, premyslené dispozície
Vybavenie a technológie:
Veľkoformátové okná s trojsklom
Podlahové kúrenie
Predpríprava na klimatizáciu a elektrické žalúzie
Vybrané byty s možnosťou krbu alebo voľne stojacich kachlí
Parkovanie v uzavretom areáli so zabezpečením a kamerovým systémom
2x výťah
Financovanie:
💰 Výhodný model 15/85
– zaplatíte iba 15 % pri podpise zmluvy, zvyšok až po kolaudácii
Výborná lokalita Báhoň:
Kompletná občianska vybavenosť: škola, škôlka, potraviny, lekár, ihriská
Len 5 min chôdzou od vlakovej stanice
Rýchle spojenie:
Bratislava – 23 min vlakom
Trnava – 11 min, Pezinok – 12 min
D1 – 7 min autom
Cena od 158 999 €
 
                                        Volám sa Mgr. Michal Marták a už niekoľko rokov sa venujem svetu nehnuteľností.
Vyštudoval som Právnickú fakultu Univerzity Komenského v Bratislave, kde som získal pevné základy v oblasti práva. Počas kariéry som pôsobil v advokátskych kanceláriách ako koncipient a neskôr v investičnej spoločnosti Across Private Investments ako investičný konzultant, kde som mal možnosť spoznať fungovanie investícií, financií a obchodných vzťahov z prvej ruky.
Tieto skúsenosti ma priviedli k realitám, ktorým sa naplno venujem od roku 2022. Pri práci s klientmi sa snažím spájať odborné znalosti s ľudským prístupom – pretože verím, že kúpa či predaj nehnuteľnosti nie je len o číslach a zmluvách, ale najmä o dôvere, komunikácii a pochopení potrieb každého klienta. Mojím cieľom je, aby celý proces prebehol transparentne, bezpečne a s výsledkom, s ktorým budete spokojní.
Primárna oblasť pôsobenia je Bratislavský a Trnavský kraj.
Ak hľadáte spoľahlivého partnera pre predaj či kúpu nehnuteľnosti, rád vám pomôžem nájsť riešenie, ktoré vám bude dávať zmysel.