Používame cookies

Súbory cookie a ďalšie technológie sledovania používame na zlepšenie vášho zážitku z prehliadania našich webových stránok, na to, aby sme vám zobrazovali prispôsobený obsah a cielené reklamy, na analýzu návštevnosti našich webových stránok a na pochopenie toho, odkiaľ naši návštevníci prichádzajú. Viac info

Popis nehnuteľnosti

Na predaj 3-izbový byt od 189 499 € v projekte Rezidencia Potôčik – moderné bývanie v prírode, len 23 min od Bratislavy

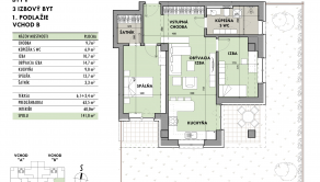
Ponúkame na predaj 3-izbový byt s rozlohou  68 m², v cene od 189 499 €, v novom projekte Rezidencia Potôčik. Výstavba sa začína v septembri 2025. Tento výnimočný projekt sa nachádza v pokojnej a zelenej časti obce Báhoň a je ideálnym miestom pre tých, ktorí hľadajú pokoj vidieka s dostupnosťou mesta.

O projekte:

Novostavba s 48 bytmi

Byt sa nachádza na 1. NP

Priestranná predzáhradka 63,5 m²

Terasa 6,1 m2

Terasa 3,4 m2

Možnosť výberu: HOLOBYT alebo ŠTANDARD s výberom materiálov

Moderný dizajn, premyslené dispozície

Vybavenie a technológie:

Veľkoformátové okná s trojsklom

Podlahové kúrenie

Predpríprava na klimatizáciu a elektrické žalúzie

Vybrané byty s možnosťou krbu alebo voľne stojacich kachlí

Parkovanie v uzavretom areáli so zabezpečením a kamerovým systémom

2x výťah

Financovanie:

💰 Výhodný model 15/85
– zaplatíte iba 15 % pri podpise zmluvy, zvyšok až po kolaudácii

Výborná lokalita Báhoň:

Kompletná občianska vybavenosť: škola, škôlka, potraviny, lekár, ihriská

Len 5 min chôdzou od vlakovej stanice

Rýchle spojenie:

Bratislava – 23 min vlakom

Trnava – 11 min, Pezinok – 12 min

D1 – 7 min autom

Cena od 189 499€

Vlastnosti

Status:
aktívne
Vlastníctvo:
korporácia
Predzáhradka:
áno
Plocha predzáhradky:
63,5
Úžitková plocha:
68 m2
Zastavaná plocha:
68 m2
Podlahová plocha:
68 m2
Stav:
Vo výstavbe
Počet izieb:
3
Energetická náročnosť budovy:
Nízkoenergetický
Typ budovy:
zmiešané
Typ výbavy:
holopriestor
Terasa:
áno
Výťah:
áno
Rok výstavby:
2025
Rok kolaudácie:
2027
Pozícia:
Prízemie
Celková plocha:
141 m2
Terasa plocha:
9.5 m2
Počet terás:
2
Inžinierske siete:
áno
Voda:
áno
Elektrika:
áno
Plyn:
áno
Kanalizácia:
áno

Informatívna úverová kalkulačka

Pozrieť na mape

Maklér

Mgr. Michal Marták

Mgr. Michal Marták

Realitný špecialista

  • Slovensky

Volám sa Mgr. Michal Marták a už niekoľko rokov sa venujem svetu nehnuteľností.

Vyštudoval som Právnickú fakultu Univerzity Komenského v Bratislave, kde som získal pevné základy v oblasti práva. Počas kariéry som pôsobil v advokátskych kanceláriách ako koncipient a neskôr v investičnej spoločnosti Across Private Investments ako investičný konzultant, kde som mal možnosť spoznať fungovanie investícií, financií a obchodných vzťahov z prvej ruky.

Tieto skúsenosti ma priviedli k realitám, ktorým sa naplno venujem od roku 2022. Pri práci s klientmi sa snažím spájať odborné znalosti s ľudským prístupom – pretože verím, že kúpa či predaj nehnuteľnosti nie je len o číslach a zmluvách, ale najmä o dôvere, komunikácii a pochopení potrieb každého klienta. Mojím cieľom je, aby celý proces prebehol transparentne, bezpečne a s výsledkom, s ktorým budete spokojní.

Primárna oblasť pôsobenia je Bratislavský a Trnavský kraj.

Ak hľadáte spoľahlivého partnera pre predaj či kúpu nehnuteľnosti, rád vám pomôžem nájsť riešenie, ktoré vám bude dávať zmysel.

Radi Vám poradíme

Podobné nehnuteľnosti