Používame cookies

Súbory cookie a ďalšie technológie sledovania používame na zlepšenie vášho zážitku z prehliadania našich webových stránok, na to, aby sme vám zobrazovali prispôsobený obsah a cielené reklamy, na analýzu návštevnosti našich webových stránok a na pochopenie toho, odkiaľ naši návštevníci prichádzajú. Viac info

Popis developerského projektu

Na predaj 2-izbové byty od 136 999 € v projekte Rezidencia Potôčik – moderné bývanie v prírode, len 23 min od Bratislavy

Ponúkame na predaj 2-izbové byty s rozlohou od 49 m², v cene od 136 999 €, v novom projekte Rezidencia Potôčik. Výstavba sa začína v septembri 2025. Tento výnimočný projekt sa nachádza v pokojnej a zelenej časti obce Báhoň a je ideálnym miestom pre tých, ktorí hľadajú pokoj vidieka s dostupnosťou mesta.

O projekte:

Novostavba s 48 bytmi

Byty od 1. po 6. nadzemné podlažie

Priestranné balkóny, terasy a predzáhradky

Možnosť výberu: HOLOBYT alebo ŠTANDARD s výberom materiálov

Moderný dizajn, premyslené dispozície

Vybavenie a technológie:

Veľkoformátové okná s trojsklom

Podlahové kúrenie

Predpríprava na klimatizáciu a elektrické žalúzie

Vybrané byty s možnosťou krbu alebo voľne stojacich kachlí

Parkovanie v uzavretom areáli so zabezpečením a kamerovým systémom

2x výťah

Financovanie:

💰 Výhodný model 15/85
– zaplatíte iba 15 % pri podpise zmluvy, zvyšok až po kolaudácii

Výborná lokalita Báhoň:

Kompletná občianska vybavenosť: škola, škôlka, potraviny, lekár, ihriská

Len 5 min chôdzou od vlakovej stanice

Rýchle spojenie:

Bratislava – 23 min vlakom

Trnava – 11 min, Pezinok – 12 min

D1 – 7 min autom

Cena od 136 999 €

Zoznam objektov

Číslo
Počet izieb
Obytná plocha
Poschodie
Balkón/ Lodžia
Terasa
Celková plocha
Stav
Cena
 
Číslo: G1
Počet izieb: 2
Obytná plocha: 59.9 m2
Poschodie: Prízemie
Balkón/Lodžia: - / -
Terasa: 3.4 m2
Celková plocha: 88.9 m2
Stav: aktívne
Cena: 161 999 €
Číslo: H1
Počet izieb: 2
Obytná plocha: 54.9 m2
Poschodie: Prízemie
Balkón/Lodžia: - / -
Terasa: 3.7 m2
Celková plocha: 77.7 m2
Stav: aktívne
Cena: -
Číslo: H1
Počet izieb: 2
Obytná plocha: 54.9 m2
Poschodie: Prízemie
Balkón/Lodžia: - / -
Terasa: 3.7 m2
Celková plocha: 77.7 m2
Stav: aktívne
Cena: -
Číslo: H1
Počet izieb: 2
Obytná plocha: 54.9 m2
Poschodie: Prízemie
Balkón/Lodžia: - / -
Terasa: 3.7 m2
Celková plocha: 77.7 m2
Stav: aktívne
Cena: -
Číslo: H1
Počet izieb: 2
Obytná plocha: 54.9 m2
Poschodie: Prízemie
Balkón/Lodžia: - / -
Terasa: 3.7 m2
Celková plocha: 77.7 m2
Stav: aktívne
Cena: -
Číslo: H1
Počet izieb: 2
Obytná plocha: 54.9 m2
Poschodie: Prízemie
Balkón/Lodžia: - / -
Terasa: 3.7 m2
Celková plocha: 77.7 m2
Stav: aktívne
Cena: -
Číslo: H1
Počet izieb: 2
Obytná plocha: 54.9 m2
Poschodie: Prízemie
Balkón/Lodžia: - / -
Terasa: 3.7 m2
Celková plocha: 77.7 m2
Stav: aktívne
Cena: 158 999 €
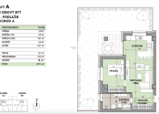
Číslo: A1
Počet izieb: 2
Obytná plocha: 48.1 m2
Poschodie: Prízemie
Balkón/Lodžia: - / -
Terasa: 6.1 m2
Celková plocha: 107.1 m2
Stav: rezervované
Cena: -
Číslo: A2
Počet izieb: 2
Obytná plocha: 48.1 m2
Poschodie: 2
Balkón/Lodžia: 6.1 m2 / 3.4 m2
Terasa:
Celková plocha: 54.2 m2
Stav: rezervované
Cena: -
Číslo: C1
Počet izieb: 2
Obytná plocha: 59.9 m2
Poschodie: Prízemie
Balkón/Lodžia: - / -
Terasa: 3.4 m2
Celková plocha: 88.9 m2
Stav: aktívne
Cena: 161 999 €
Číslo: A2
Počet izieb: 2
Obytná plocha: 48.1 m2
Poschodie: 2
Balkón/Lodžia: 6.1 m2 / 3.4 m2
Terasa:
Celková plocha: 54.2 m2
Stav: rezervované
Cena: -
Číslo: F1
Počet izieb: 3
Obytná plocha: 68 m2
Poschodie: Prízemie
Balkón/Lodžia: - / -
Terasa: 9.5 m2
Celková plocha: 141 m2
Stav: aktívne
Cena: 189 499 €
Číslo: B1
Počet izieb: 3
Obytná plocha: 68 m2
Poschodie: Prízemie
Balkón/Lodžia: - / -
Terasa: 9.5 m2
Celková plocha: 141 m2
Stav: aktívne
Cena: 189 499 €
Číslo: F2
Počet izieb: 3
Obytná plocha: 68 m2
Poschodie: 2
Balkón/Lodžia: 6.1 m2 / 3.4 m2
Terasa:
Celková plocha: 77.5 m2
Stav: aktívne
Cena: 188 499 €
Číslo: B2
Počet izieb: 3
Obytná plocha: 68 m2
Poschodie: 2
Balkón/Lodžia: 6.1 m2 / 3.4 m2
Terasa:
Celková plocha: 77.5 m2
Stav: aktívne
Cena: 188 499 €
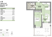
Číslo: D1
Počet izieb: 2
Obytná plocha: 54.9 m2
Poschodie: Prízemie
Balkón/Lodžia: - / -
Terasa: 3.7 m2
Celková plocha: 77.7 m2
Stav: aktívne
Cena: 158 999 €
Číslo: E1
Počet izieb: 2
Obytná plocha: 48.1 m2
Poschodie: Prízemie
Balkón/Lodžia: - / -
Terasa: 6.1 m2
Celková plocha: 80.7 m2
Stav: rezervované
Cena: -
Číslo: H1
Počet izieb: 2
Obytná plocha: 54.9 m2
Poschodie: Prízemie
Balkón/Lodžia: - / -
Terasa: 3.7 m2
Celková plocha: 77.7 m2
Stav: aktívne
Cena: 158 999 €
Číslo: F1
Počet izieb: 3
Obytná plocha: 68 m2
Poschodie: Prízemie
Balkón/Lodžia: - / -
Terasa:
Celková plocha: 141 m2
Stav: aktívne
Cena: 189 499 €
Číslo: B6
Počet izieb: 4
Obytná plocha: 84.6 m2
Poschodie: 6
Balkón/Lodžia: 10.7 m2 / 13.4 m2
Terasa: 50 m2
Celková plocha: 95.3 m2
Stav: aktívne
Cena: -
Číslo: C7
Počet izieb: 3
Obytná plocha: 68.5 m2
Poschodie: 7
Balkón/Lodžia: 15.5 m2 / 8.1 m2
Terasa: 21.6 m2
Celková plocha: 90.1 m2
Stav: aktívne
Cena: -
Číslo: B7
Počet izieb: 3
Obytná plocha: 68.6 m2
Poschodie: 7
Balkón/Lodžia: 15.5 m2 / 8.1 m2
Terasa: 20.4 m2
Celková plocha: 89 m2
Stav: aktívne
Cena: -
Číslo: F6
Počet izieb: 3
Obytná plocha: 89.8 m2
Poschodie: 6
Balkón/Lodžia: 15.5 m2 / 8.1 m2
Terasa: 50 m2
Celková plocha: 113.4 m2
Stav: aktívne
Cena: -
Číslo: E6
Počet izieb: 4
Obytná plocha: 84.6 m2
Poschodie: 6
Balkón/Lodžia: 10.7 m2 / 13.4 m2
Terasa: 50 m2
Celková plocha: 95.3 m2
Stav: aktívne
Cena: -
Číslo: D6
Počet izieb: 2
Obytná plocha: 40.3 m2
Poschodie: 6
Balkón/Lodžia: 9.2 m2 / 3.7 m2
Terasa:
Celková plocha: 49.5 m2
Stav: aktívne
Cena: -
Číslo: A7
Počet izieb: 3
Obytná plocha: 72.9 m2
Poschodie: 7
Balkón/Lodžia: 15.5 m2 / 8.1 m2
Terasa: 24.7 m2
Celková plocha: 97.6 m2
Stav: rezervované
Cena: -
Číslo: B6
Počet izieb: 3
Obytná plocha: 85.7 m2
Poschodie: 6
Balkón/Lodžia: 10.7 m2 / 13.4 m2
Terasa: 50 m2
Celková plocha: 96.4 m2
Stav: aktívne
Cena: -
Číslo: F3
Počet izieb: 3
Obytná plocha: 65.2 m2
Poschodie: 3
Balkón/Lodžia: 9.2 m2 / 6.4 m2
Terasa:
Celková plocha: 71.6 m2
Stav: aktívne
Cena: 184 999 €
Číslo: D7
Počet izieb: 2
Obytná plocha: 46.2 m2
Poschodie: 7
Balkón/Lodžia: 15.5 m2 / 8.1 m2
Terasa: 23.3 m2
Celková plocha: 69.9 m2
Stav: aktívne
Cena: -
Číslo: F4
Počet izieb: 3
Obytná plocha: 65.2 m2
Poschodie: 4
Balkón/Lodžia: 9.2 m2 / 6.4 m2
Terasa:
Celková plocha: 71.6 m2
Stav: aktívne
Cena: -
Číslo: F3
Počet izieb: 3
Obytná plocha: 65.2 m2
Poschodie: 3
Balkón/Lodžia: 9.2 m2 / 6.4 m2
Terasa:
Celková plocha: 71.6 m2
Stav: aktívne
Cena: -
Číslo: F4
Počet izieb: 3
Obytná plocha: 65.2 m2
Poschodie: 4
Balkón/Lodžia: 9.2 m2 / 6.4 m2
Terasa:
Celková plocha: 71.6 m2
Stav: aktívne
Cena: -
Číslo: E3
Počet izieb: 2
Obytná plocha: 40.3 m2
Poschodie: 3
Balkón/Lodžia: 9.2 m2 / 3.7 m2
Terasa:
Celková plocha: 49.5 m2
Stav: aktívne
Cena: -
Číslo: E3
Počet izieb: 2
Obytná plocha: 40.3 m2
Poschodie: 3
Balkón/Lodžia: 9.2 m2 / 3.7 m2
Terasa:
Celková plocha: 49.5 m2
Stav: aktívne
Cena: 136 999 €
Číslo: E6
Počet izieb: 4
Obytná plocha: 84.6 m2
Poschodie: 6
Balkón/Lodžia: 10.7 m2 / 13.4 m2
Terasa: 50 m2
Celková plocha: 95.3 m2
Stav: aktívne
Cena: 224 999 €
Číslo: E3
Počet izieb: 2
Obytná plocha: 40.3 m2
Poschodie: 3
Balkón/Lodžia: 9.2 m2 / 3.7 m2
Terasa:
Celková plocha: 49.5 m2
Stav: aktívne
Cena: 136 999 €
Číslo: F4
Počet izieb: 3
Obytná plocha: 65.2 m2
Poschodie: 4
Balkón/Lodžia: 9.2 m2 / 6.4 m2
Terasa:
Celková plocha: 71.6 m2
Stav: aktívne
Cena: 187 999 €
Číslo: C4
Počet izieb: 2
Obytná plocha: 56.7 m2
Poschodie: 4
Balkón/Lodžia: 9.2 m2 / 13.2 m2
Terasa:
Celková plocha: 69.9 m2
Stav: aktívne
Cena: 170 999 €
Číslo: D2
Počet izieb: 2
Obytná plocha: 54.9 m2
Poschodie: 2
Balkón/Lodžia: 6.1 m2 / 3.7 m2
Terasa:
Celková plocha: 58.6 m2
Stav: aktívne
Cena: 154 999 €
Číslo: E2
Počet izieb: 2
Obytná plocha: 48.1 m2
Poschodie: 2
Balkón/Lodžia: 6.1 m2 / 3.7 m2
Terasa:
Celková plocha: 54.2 m2
Stav: rezervované
Cena: -
Číslo: G2
Počet izieb: 2
Obytná plocha: 59.9 m2
Poschodie: 2
Balkón/Lodžia: 6.1 m2 / 3.4 m2
Terasa:
Celková plocha: 63.3 m2
Stav: aktívne
Cena: 159 999 €
Číslo: G2
Počet izieb: 2
Obytná plocha: 54.9 m2
Poschodie: 2
Balkón/Lodžia: 6.1 m2 / 3.7 m2
Terasa:
Celková plocha: 58.6 m2
Stav: aktívne
Cena: 154 999 €
Číslo: A3
Počet izieb: 2
Obytná plocha: 40.3 m2
Poschodie: 3
Balkón/Lodžia: 9.2 m2 / 3.7 m2
Terasa:
Celková plocha: 49.5 m2
Stav: rezervované
Cena: -
Číslo: B3
Počet izieb: 3
Obytná plocha: 65.2 m2
Poschodie: 3
Balkón/Lodžia: 9.2 m2 / 6.4 m2
Terasa:
Celková plocha: 71.6 m2
Stav: aktívne
Cena: 184 999 €
Číslo: C3
Počet izieb: 2
Obytná plocha: 56.7 m2
Poschodie: 3
Balkón/Lodžia: 9.2 m2 / 13.2 m2
Terasa:
Celková plocha: 69.9 m2
Stav: aktívne
Cena: 169 999 €
Číslo: D3
Počet izieb: 4
Obytná plocha: 119.3 m2
Poschodie: 3
Balkón/Lodžia: 9.2 m2 / 18.1 m2
Terasa: 15.4 m2
Celková plocha: 152.8 m2
Stav: aktívne
Cena: 291 499 €
Číslo: G3
Počet izieb: 2
Obytná plocha: 56.7 m2
Poschodie: 3
Balkón/Lodžia: 9.2 m2 / 13.2 m2
Terasa:
Celková plocha: 69.9 m2
Stav: aktívne
Cena: 169 999 €
Číslo: H3
Počet izieb: 4
Obytná plocha: 119.3 m2
Poschodie: 3
Balkón/Lodžia: 9.2 m2 / 18.1 m2
Terasa: 15.4 m2
Celková plocha: 152.8 m2
Stav: aktívne
Cena: 291 499 €
Číslo: A4
Počet izieb: 2
Obytná plocha: 40.3 m2
Poschodie: 4
Balkón/Lodžia: 9.2 m2 / 3.7 m2
Terasa:
Celková plocha: 49.5 m2
Stav: predané
Cena: -
Číslo: B4
Počet izieb: 3
Obytná plocha: 65.2 m2
Poschodie: 4
Balkón/Lodžia: 9.2 m2 / 6.4 m2
Terasa:
Celková plocha: 71.6 m2
Stav: aktívne
Cena: 187 999 €
Číslo: A6
Počet izieb: 2
Obytná plocha: 40.3 m2
Poschodie: 6
Balkón/Lodžia: 9.2 m2 / 3.7 m2
Terasa:
Celková plocha: 49.5 m2
Stav: aktívne
Cena: -
Číslo: D4
Počet izieb: 3
Obytná plocha: 100.4 m2
Poschodie: 4
Balkón/Lodžia: 9.2 m2 / 18.1 m2
Terasa: 15.4 m2
Celková plocha: 133.9 m2
Stav: aktívne
Cena: 263 999 €
Číslo: E4
Počet izieb: 2
Obytná plocha: 40.3 m2
Poschodie: 4
Balkón/Lodžia: 9.2 m2 / 3.7 m2
Terasa:
Celková plocha: 49.5 m2
Stav: rezervované
Cena: -
Číslo: F4
Počet izieb: 3
Obytná plocha: 65.2 m2
Poschodie: 4
Balkón/Lodžia: 9.2 m2 / 6.4 m2
Terasa:
Celková plocha: 71.6 m2
Stav: aktívne
Cena: 187 999 €
Číslo: G4
Počet izieb: 2
Obytná plocha: 56.7 m2
Poschodie: 4
Balkón/Lodžia: 9.2 m2 / 13.2 m2
Terasa:
Celková plocha: 69.9 m2
Stav: aktívne
Cena: 170 999 €
Číslo: H4
Počet izieb: 3
Obytná plocha: 100.4 m2
Poschodie: 4
Balkón/Lodžia: 9.2 m2 / 18.1 m2
Terasa: 15.4 m2
Celková plocha: 133.9 m2
Stav: aktívne
Cena: 263 999 €
Číslo: A5
Počet izieb: 2
Obytná plocha: 40.3 m2
Poschodie: 5
Balkón/Lodžia: 9.2 m2 / 3.7 m2
Terasa:
Celková plocha: 49.5 m2
Stav: predané
Cena: -
Číslo: B5
Počet izieb: 3
Obytná plocha: 65 m2
Poschodie: 5
Balkón/Lodžia: 9.2 m2 / 6.4 m2
Terasa:
Celková plocha: 71.4 m2
Stav: aktívne
Cena: 189 999 €
Číslo: C5
Počet izieb: 4
Obytná plocha: 109 m2
Poschodie: 5
Balkón/Lodžia: 9.2 m2 / 13.4 m2
Terasa: 50 m2
Celková plocha: 172.4 m2
Stav: aktívne
Cena: -
Číslo: D5
Počet izieb: 2
Obytná plocha: 40.3 m2
Poschodie: 5
Balkón/Lodžia: 9.2 m2 / 3.7 m2
Terasa:
Celková plocha: 49.5 m2
Stav: aktívne
Cena: 140 999 €
Číslo: E5
Počet izieb: 3
Obytná plocha: 65 m2
Poschodie: 5
Balkón/Lodžia: 9.2 m2 / 6.4 m2
Terasa:
Celková plocha: 71.4 m2
Stav: aktívne
Cena: 189 999 €
Číslo: F5
Počet izieb: 4
Obytná plocha: 109 m2
Poschodie: 5
Balkón/Lodžia: 9.2 m2 / 13.4 m2
Terasa: 50 m2
Celková plocha: 172.4 m2
Stav: aktívne
Cena: -

Vlastnosti

Status:
aktívne
Vlastníctvo:
korporácia
Úžitková plocha:
4 m2
Zastavaná plocha:
49 m2
Podlahová plocha:
49 m2
Stav:
Vo výstavbe
Počet izieb:
2
Typ výbavy:
holopriestor
Rok výstavby:
2025
Rok kolaudácie:
2027
Celková plocha:
49 m2
Inžinierske siete:
áno
Voda:
áno
Elektrika:
áno
Plyn:
áno
Kanalizácia:
áno

Pozrieť na mape

Maklér

Mgr. Michal Marták

Mgr. Michal Marták

Realitný špecialista

  • Slovensky

Volám sa Mgr. Michal Marták a už niekoľko rokov sa venujem svetu nehnuteľností.

Vyštudoval som Právnickú fakultu Univerzity Komenského v Bratislave, kde som získal pevné základy v oblasti práva. Počas kariéry som pôsobil v advokátskych kanceláriách ako koncipient a neskôr v investičnej spoločnosti Across Private Investments ako investičný konzultant, kde som mal možnosť spoznať fungovanie investícií, financií a obchodných vzťahov z prvej ruky.

Tieto skúsenosti ma priviedli k realitám, ktorým sa naplno venujem od roku 2022. Pri práci s klientmi sa snažím spájať odborné znalosti s ľudským prístupom – pretože verím, že kúpa či predaj nehnuteľnosti nie je len o číslach a zmluvách, ale najmä o dôvere, komunikácii a pochopení potrieb každého klienta. Mojím cieľom je, aby celý proces prebehol transparentne, bezpečne a s výsledkom, s ktorým budete spokojní.

Primárna oblasť pôsobenia je Bratislavský a Trnavský kraj.

Ak hľadáte spoľahlivého partnera pre predaj či kúpu nehnuteľnosti, rád vám pomôžem nájsť riešenie, ktoré vám bude dávať zmysel.

Radi Vám poradíme

Podobné nehnuteľnosti