We use cookies

We use cookies and other tracking technologies to improve your browsing experience on our website, to show you personalized content and targeted ads, to analyze our website traffic, and to understand where our visitors are coming from. More info

PREDAJ pozemku s projektom pre výstavbu 4 bytov VINIČNÉ

Street: Hlavná
City/Town: Viničné
District: Pezinok
County: Bratislavský kraj
Category: Land
Type: Sale
Land type: Land – for living
160 000 €

Property description

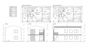
Ponúkame exkluzívne malý developerský PROJEKT na realizáciu so 4 bytmi VINIČNE

Existujúce 2 rodinné domy v centre obce Viničné sa prestavbou a nadstavbou zrealizujú na 4 bytové jednotky. Byty by mohli mať rozlohu po 70m2

Počet bytových jednotiek v plánovanom projekte: 4x trojizbové byty

Celková obytná plocha : 300m2

Počet nadzemných podlaží: 2

Počet parkovacích státi: 8-10

Možnosť vybudovania aj predzáhradok aj k spodným bytom.

 

Aktuálny stav:

+ 2 existujúce rodinné domy

+ pozemok o výmere 739 m2 (1/2 podiel na prístupovej ceste  325m2)

+ všetky IS na pozemku

 

Zrealizovali sme:

+ projektová dokumentácia pre stavebné povolenie

+ súhlasné stanovisko obce s investičným zámerom z roku 2024

+ UPI v súlade so stavebným zámerom

+ vizualizácie projektu

+ vyjadrenie ZSE o kapacite a bode napojenia

+ geodetický polohopis a výškopis

 

UPI:

max. index zastavanosti 40%

index zelených plôch 30%

Podlažnosť: 2 nadzemné podlažia + podkrovie

Features

Status:
active
Ownership:
corporate
Land area:
739 m2
Ground type:
flatland
Total area:
739 m2
Utilities:
yes
Water:
yes
Electric:
yes
Sewage:
yes

Show on map

Broker

Ing. Michal Kolenčík

Ing. Michal Kolenčík

CEO, licencovaný realitný špecialista

  • Slovensky
  • Česky
  • English
  • Polskie
  • lrm
  • narks

Volám sa Ing. Michal Kolenčík, som zakladateľom a realitným špecialistom z realitnej kancelárie Prom real.

Už 15 rokov sa venujem práci s ľuďmi v rôznych odvetviach. Pred 11 rokmi som sa rozhodol otvoriť realitnú kanceláriu Prom real v meste Pezinok a začal sa realitám venovať naplno. Od tej chvíle som sa plne venoval realitnej oblasti a môj entuziazmus a oddanosť práci nám rýchlo priniesli výnimočné výsledky.

Sme hrdí na to, že sme medzi top hráčom v Pezinku a širokom okolí, kde sme túto spoločnosť založili. Naša expanzia pokračuje, s pobočkou v Bratislave. Predávali sme viacero developerské projektov v Tatrách, Trenčíne, Pezinku..

Od samého začiatku som si kládol za cieľ poskytovať služby na najvyššej úrovni, a preto spolupracujeme s odborníkmi v obore. Naša realitná kancelária je hrdým členom NARKS a Združenia realitných kancelárií Slovenska.

We will be happy to advise you

Similar properties