Používame cookies

Súbory cookie a ďalšie technológie sledovania používame na zlepšenie vášho zážitku z prehliadania našich webových stránok, na to, aby sme vám zobrazovali prispôsobený obsah a cielené reklamy, na analýzu návštevnosti našich webových stránok a na pochopenie toho, odkiaľ naši návštevníci prichádzajú. Viac info

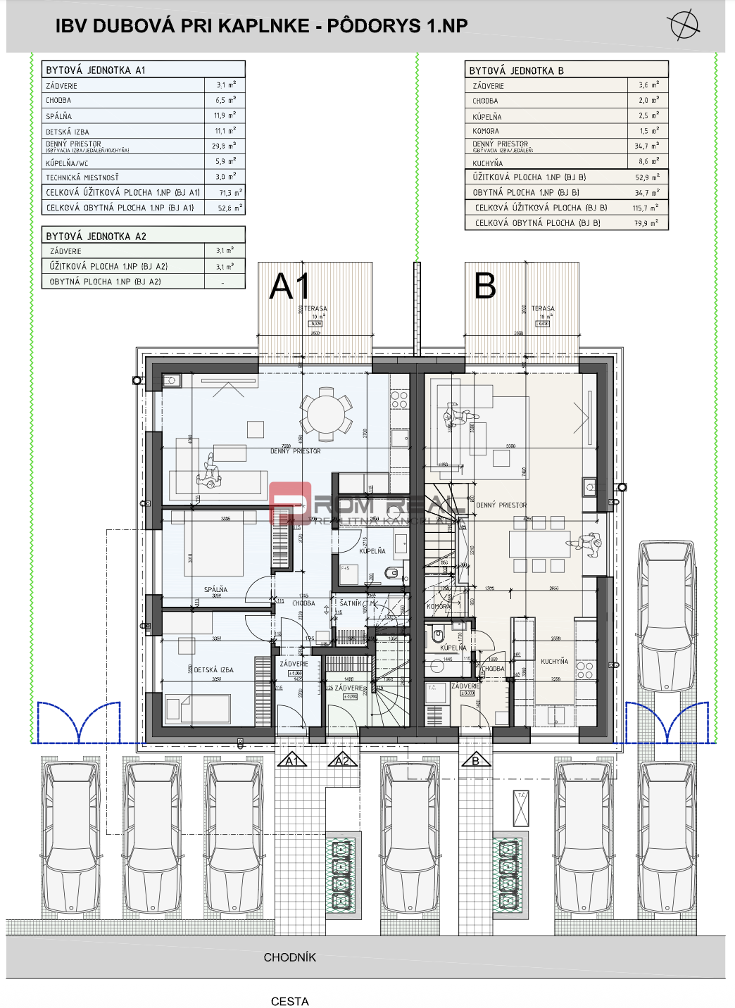
4-izbový mezonet so záhradou v projekte PRI KAPLNKE – Dubová, Malé Karpaty

Interné ID: 3B3
Obec: Dubová
Okres: Pezinok
Kraj: Bratislavský kraj
Druh: Byty
Typ: Predaj
Typ bytu: 4-izbový byt
322 020 €

Popis nehnuteľnosti

Nadštandardné bývanie s atmosférou prírody a komfortom rodinného domu.
Predstavujeme priestranný 4-izbový mezonet s vlastnou záhradou o výmere 186 m², súčasťou jedinečného projektu PRI KAPLNKE v obci Dubová – na úpätí Malých Karpát.
Projekt spája pokojné prostredie, modernú architektúru a vysokú kvalitu bývania pre tých, ktorí hľadajú viac než len byt.

Exkluzívny bonus
🎁 3 parkovacie státia v hodnote 20 000 € – ZDARMA!

Dispozícia a vybavenie
Úžitková plocha: 116,2 m²
Záhrada 186 m² – ideálna na relax, rodinu aj záhradné posedenia
3 parkovacie státia v cene
Samostatný vstup – žiadne spoločné priestory
Predaj v štádiu holobyt, s možnosťou dokončenia do štandardu alebo nadštandardu
Podlahové kúrenie, samostatné meranie energií
Veľkoformátové okná s trojsklom, predpríprava na elektrické žalúzie a klimatizáciu
Vybrané byty s predprípravou na krb alebo voľne stojace kachle

Projekt a architektúra
Rodinný dom obsahuje iba tri bytové jednotky, čo prináša výnimočný pocit súkromia:
3-izbový byt na prízemí so záhradou
3-izbový byt na poschodí s terasou
4-izbový mezonet (ponúkaný byt) – dvojpodlažné riešenie s vlastnou záhradou a tromi parkovacími miestami
Každý byt má vlastný vstup, parkovanie a vysoký štandard súkromia.

Lokalita – Dubová, PRI KAPLNKE
Dubová je malebná obec na Malokarpatskej vínnej ceste, v blízkosti Modry a Pezinka.
Ponúka dokonalú rovnováhu medzi prírodou a mestom:
6 km od Pezinka
16 km od Senca
23 km od Bratislavy
25 km od Trnavy
Projekt je situovaný pod horami a vinicami, s autobusovou zastávkou len 200 m od domu a rýchlym napojením na cestu II/502.

V rámci projektu bude vybudovaná kompletná infraštruktúra:
prístupová komunikácia a chodníky
verejné osvetlenie
inžinierske siete a príprava na optický internet

Výhody bývania
Pokojné komunitné bývanie s minimom susedov
Vlastná záhrada + 3 parkovacie miesta zdarma
Kombinácia prírody a výbornej dostupnosti do mesta
Možnosť úprav a výberu štandardu podľa vlastného vkusu
Nadčasový dizajn, kvalitné materiály, vysoká hodnota investície

Cena: 322 020 €
Výhodné financovanie 15/85 – len 15 % pri podpise zmluvy, zvyšok po kolaudácii.

Zaujala vás táto ponuka?
Dohodnite si obhliadku alebo si vyžiadajte viac informácií:

Mgr. Michal Marták
📞 0903 056 993
✉️ martak@promreal.sk
🌐 www.pri-kaplnke.sk

Vlastnosti

Status:
aktívne
Vlastníctvo:
korporácia
Predzáhradka:
áno
Plocha predzáhradky:
186
Úžitková plocha:
116.2 m2
Zastavaná plocha:
52.9 m2
Podlahová plocha:
116.2 m2
Stav:
Vo výstavbe
Počet izieb:
4
Energetická náročnosť budovy:
Nízkoenergetický
Typ budovy:
tehla
Typ výbavy:
holopriestor
Rok výstavby:
2024
Rok kolaudácie:
2026
Počet poschodí od prízemia vyššie:
1
Pozícia:
Prízemie
Celková plocha:
302.2 m2
Počet vonkajších parkovacích miest:
3
Inžinierske siete:
áno
Voda:
áno
Elektrika:
áno
Plyn:
áno
Kanalizácia:
áno
Voda - na pozemku - vodný zdroj:
áno
Elektrika - na pozemku - 230 V:
áno
Elektrika - na pozemku - 380 V:
áno
Plyn - na pozemku:
áno
Kanalizácia - na pozemku - kanalizácia:
áno
Vykurovanie - podlahové:
áno

Informatívna úverová kalkulačka

Pozrieť na mape

Maklér

Mgr. Michal Marták

Mgr. Michal Marták

Realitný špecialista

  • Slovensky

Volám sa Mgr. Michal Marták a už niekoľko rokov sa venujem svetu nehnuteľností.

Vyštudoval som Právnickú fakultu Univerzity Komenského v Bratislave, kde som získal pevné základy v oblasti práva. Počas kariéry som pôsobil v advokátskych kanceláriách ako koncipient a neskôr v investičnej spoločnosti Across Private Investments ako investičný konzultant, kde som mal možnosť spoznať fungovanie investícií, financií a obchodných vzťahov z prvej ruky.

Tieto skúsenosti ma priviedli k realitám, ktorým sa naplno venujem od roku 2022. Pri práci s klientmi sa snažím spájať odborné znalosti s ľudským prístupom – pretože verím, že kúpa či predaj nehnuteľnosti nie je len o číslach a zmluvách, ale najmä o dôvere, komunikácii a pochopení potrieb každého klienta. Mojím cieľom je, aby celý proces prebehol transparentne, bezpečne a s výsledkom, s ktorým budete spokojní.

Primárna oblasť pôsobenia je Bratislavský a Trnavský kraj.

Ak hľadáte spoľahlivého partnera pre predaj či kúpu nehnuteľnosti, rád vám pomôžem nájsť riešenie, ktoré vám bude dávať zmysel.

Radi Vám poradíme

Podobné nehnuteľnosti